Конденсационные газовые котлы Vaillant — устройства, позволяющие владельцам больше не сталкиваться с недостатком стандартных моделей — сниженным КПД вследствие того, что часть тепла буквально вылетает в трубу. В конструкции данных котлов предусмотрена кондиционная камера, которая позволяет привлечь дополнительное тепло из уходящих газов.
Как работают
Конденсационные газовые котлы Vaillant обеспечивают показатель КПД 108%. Эта впечатляющая цифра — результат оснащения модели дополнительной камерой. Вы можете более подробно узнать о методах расчета коэффициента полезного действия в статье «Как выходит КПД котла больше 100%».
После того как топливная смесь поступает в основную камеру котла и там сгорает, получившаяся энергия греет теплоноситель, а сама смесь отчасти превращается в водяной пар. Далее этого пар поступает в конденсационную камеру. Здесь с ним происходит охлаждение или конденсация (оседание) на стенках камеры, в результате теплоноситель дополнительно нагревается, получаемой таким образом энергией.
Конденсационные газовые котлы Vaillant позволяют сохранить объем теплоты, который в стандартном случае вылетает в трубу. Эти производительные устройства могут быть как одноконтурными (исключительно отопление), так и двухконтурными (отопление и, кроме того, нагрев воды).
Виды
Немецкие конденсационные котлы Вайлант представлены следующими разновидностями:
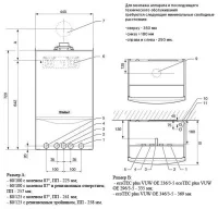
По способу установки:
- Напольные;
- Настенные.
По количеству контуров:
- Одноконтурные;
- Двухконтурные.
Стоит отметить наличие у данного бренда котлов, внешне напоминающих холодильники. Это напольные двухконтурные, только не с привычным дополнительным теплообменником, а со встроенным бойлером косвенного нагрева. Такая конструкция обеспечивает более комфортное обеспечение дома ГВС.
Преимущества
Конденсационные котлы Vaillant обладают целым рядом достоинств, которые делают эту марку превосходным выбором как для квартиры или жилого дома, так и для офиса:
- оборудование отличается высокой мощностью, оно способно поддержать нужную температуру на весьма значительной площади;
- настенные модели имеют не слишком большие габариты (что никак не сказывается на их производительности), в результате их удобно вешать на стене, где они занимают минимальное пространство;
- агрегаты не воздействуют негативным образом на окружающую среду, продукты сгорания, образующиеся в котле, оседают в конденсационной камере, их там их нейтрализуют специальные устройства.
Купить конденсационный котел Vaillant в Минске можно в интернет-магазине Progreem.by. Онлайн-магазин выполняет доставку моделей в любой место Беларуси и оперативно привезет по любому адресу в пределах столицы.